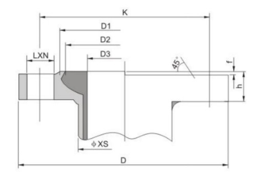
华体会web版登录入口异径管的连接方式

点击次数:   更新时间:24/03/18 14:01:03     来源:www.majeedr.com关闭分    享:
 华体会web版登录入口异径管是一种管道配件,主要用于管道变径处。它的主体结构由钢制对焊无缝管件或钢板制对焊管件构成,而内部则衬有溶融状态的硼硅酸盐玻璃,这种玻璃与钢管件内壁牢固地粘附在一起,形成了一个钢与玻璃的复合体,即华体会web版登录入口管件。这种结构使得华体会web版登录入口异径管具有化学稳定性高、内壁光滑不堵塞、流体阻力小、耐磨、耐腐蚀、耐高温、耐压耐真空等独特的性能。
  华体会web版登录入口异径管的连接方式主要有以下几种:
  承插密封连接:这是华体会web版登录入口异径管常见的连接方式,可以保证快捷、准确、省时、省力。承插密封连接适用于直径为50mm~400mm管的连接安装,可拆卸刚性法兰连接,适用于直径在1200mm以下玻璃钢管道之间或与钢管和设备之间的连接。
  法兰连接:法兰连接适用于中、低压管件、管线及设备连接,可与HG、JB、GB、ASTM、DIN、NF、JIS等标准相适应。
  套管式接头连接:适用于各种直径玻璃钢管的安装和使用中破损管道的修复,刚性约束承插胶合连接,适用于直径为50mm~400mm管的连接安装。
  双“O”型圈连接:华体会web版登录入口异径管适用于高压地下埋设管线,可进行单接口试压。
  单密封圈承接连接:适应于中、低压地下埋设管线。
  承插粘接:适应于高压及复杂荷载的大口径管线。
  对接:适应于高中、低压管线及管件连接,L和t取决于条件。
  承插○密封连接尼龙棒○键锁口:华体会web版登录入口异径管主要用于轴向拉力大的管道,如深井管。
  法兰连接:适应于中、低压管件、管线及设备连接,可与HG、JB、GB、ASTM、DIN、NF、JIS等标准相适应。
  以上就是华体会web版登录入口异径管的主要连接方式,具体选择哪种方式需要根据实际情况和需求来决定。
华体会web版登录入口异径管
 

联系我们

华体会web版登录入口
联系人:闫洪静  15966991155 电话:0533-3911007 3910507
传真:0533-3910500
地址:山东省淄博市张店区麻营工业园5号

二维码

二维码